Available

Guide Price

£425,000

Uridge Road, Tonbridge

Book a Viewing
2 1 0
Guide Price £425,000 - £450,000

Jack Charles are delighted to offer for sale this attractive Victorian terraced home, beautifully presented throughout and conveniently situated within easy reach of Tonbridge town centre, mainline station and local amenities. The property is located in a quiet road with no through traffic and falls within the catchment area for the sought after Slade Primary School.

The property offers well balanced accommodation arranged over two floors and retains much of the charm associated with homes of this period, including feature fireplaces, good ceiling heights and well proportioned rooms.

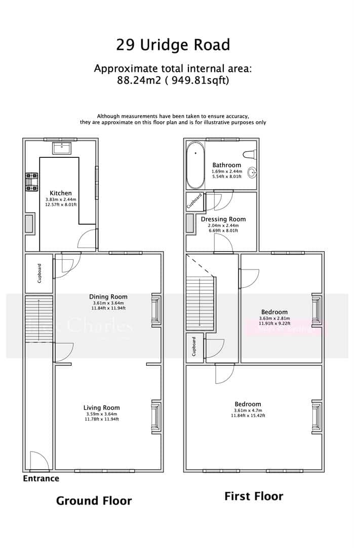
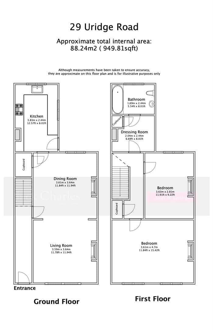
You entered via the front door into a welcoming hall which in turn leads to an living room positioned to the front of the property, featuring a fireplace and a large window providing excellent natural light. To the rear there is a separate dining room which also benefits from a feature fireplace and offers an excellent space for entertaining or family dining. The dining room opens through to the kitchen, which is fitted with a range of modern wall and base units with work surfaces over, integrated appliances and views across the rear garden.

To the first floor there are two well proportioned bedrooms. The principal bedroom is a generous double room with attractive fireplace and ample space for wardrobes and additional furniture. The second bedroom is also a comfortable double room overlooking the rear garden. In addition, there is a useful dressing room which provides excellent storage and could also be utilised as a study area if required. The family bathroom is fitted with a modern suite including a bath with shower over, wash hand basin and WC.

Externally the property enjoys a delightful rear garden which is mainly laid to lawn with a decked seating area immediately to the rear of the house, ideal for outdoor dining and relaxation. The garden is bordered by mature planting and fencing providing a pleasant and private outdoor space. Book a Viewing

Gallery

EPC

Floorplan

Location

Book A Viewing

Fill out the form below and we will be in touch to have a chat about this property, your requirements and how we can help.

  • This field is for validation purposes and should be left unchanged.
  • This field is hidden when viewing the form
  • This field is hidden when viewing the form