Available

Asking Price

£795,000

Long Mill Lane, Tonbridge

Take a Virtual Tour Book a Viewing
3 2 2
Jack Charles are delighted to offer this characterful cottage, fully modernised and upgraded, enjoying outstanding far reaching views. This charming Grade II listed home is thought to date from the early 19th Century and boasts attractive ragstone elevations to both the front and rear beneath a tiled roof.

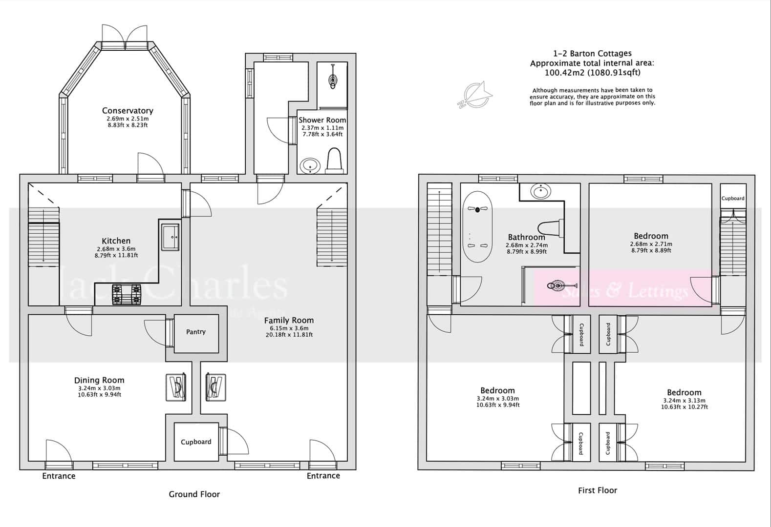
Situated within the picturesque semi rural hamlet of Dunks Green, between Shipbourne and Plaxtol on the fringes of Tonbridge, the property offers a unique history, having originally been two cottages. Internally, the accommodation is both versatile and well arranged, comprising a super through living room, separate dining room, a newly fitted bespoke kitchen, conservatory, small study and a shower room with WC. Two staircases either side of the property lead to the first floor which provides three bedrooms and a modern contemporary family bathroom.

Externally, the property benefits from parking to the front along with gardens to both the front and rear. The rear garden backs directly onto open countryside, affording exceptional views which are a particular feature of the home. There also is a wonderful outbuilding converted to a home office and separate bar perfect for entertaining in those summer months.

Properties in this sought after location are seldom available and early viewing is strongly recommended. Book a Viewing

Gallery

EPC

Floorplan

Location

Book A Viewing

Fill out the form below and we will be in touch to have a chat about this property, your requirements and how we can help.

  • This field is for validation purposes and should be left unchanged.
  • This field is hidden when viewing the form
  • This field is hidden when viewing the form