Available

Asking Price

£1,200,000

Foalhurst Close, Tonbridge

Book a Viewing
4 2 1
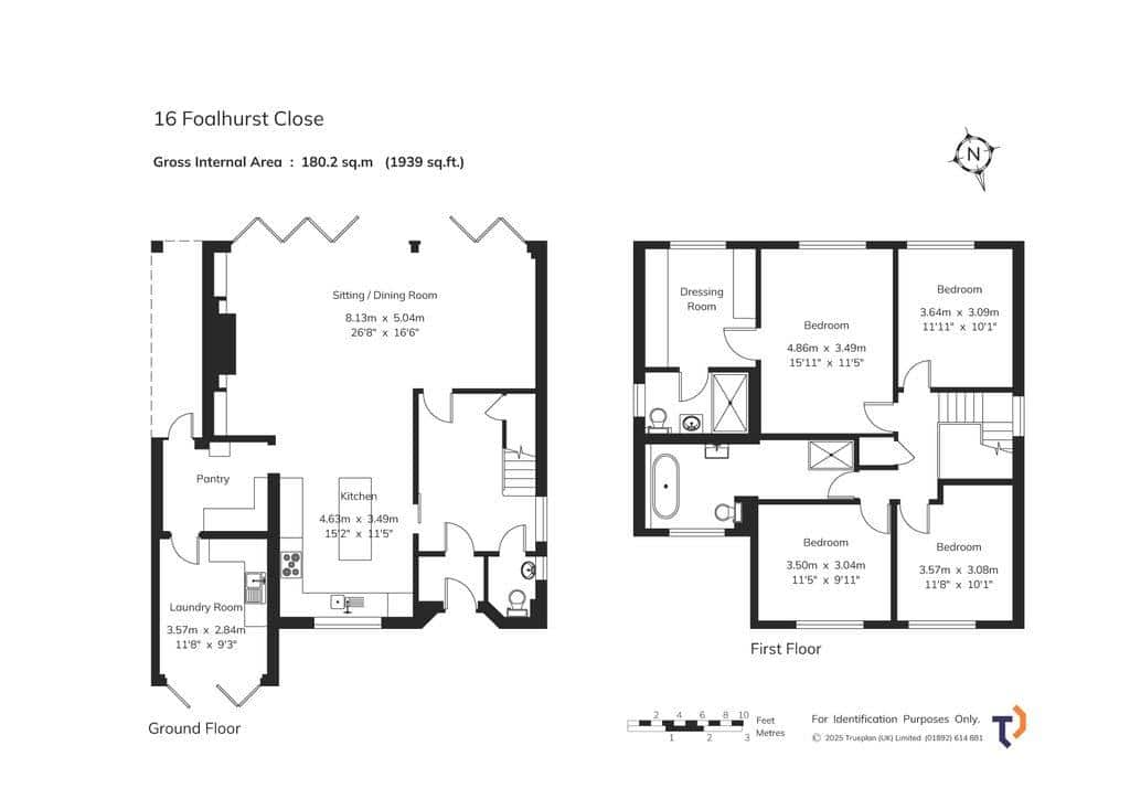
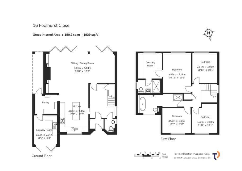
Jack Charles are delighted to offer this beautifully updated four bedroom detached family home, tucked away within a peaceful cul de sac and offering over 1,900 sq ft of stylish and well balanced living accommodation.

From the moment you arrive, the property impresses with its striking modern exterior and generous driveway parking. Inside, a bright and welcoming entrance hall with a double height ceiling sets the tone for the space and light found throughout the home.

Designed around modern family life, the heart of the house is the stunning open plan kitchen, dining and sitting area. This superb space is filled with natural light and opens seamlessly through bi fold doors onto a porcelain tiled terrace, creating an ideal setting for both everyday living and entertaining. Beyond the terrace, the garden enjoys a lawned area and attractive views over private woodland, offering a peaceful and private backdrop.

The contemporary kitchen is centred around a large island and finished with sleek cabinetry and high quality integrated appliances, complemented by a walk in pantry and separate laundry room for added practicality. The sitting area is both stylish and comfortable, featuring a modern flame effect fireplace and integrated sound system, while a cloakroom completes the ground floor.

Upstairs, the principal bedroom benefits from garden views, a walk in dressing room and a stylish ensuite shower room. Three further well proportioned double bedrooms are served by a contemporary family bathroom, complete with a walk in rainfall shower and a freestanding bath.

Ideally located within approximately 1.4 miles of Tonbridge town centre, with its excellent schools, shops and mainline transport links, this exceptional home offers the perfect blend of contemporary design, comfort and location. Book a Viewing

Gallery

EPC

Floorplan

Location

Book A Viewing

Fill out the form below and we will be in touch to have a chat about this property, your requirements and how we can help.

  • This field is for validation purposes and should be left unchanged.
  • This field is hidden when viewing the form
  • This field is hidden when viewing the form