Available

Guide Price

£495,000

Croft Close, Tonbridge

Book a Viewing
2 1 1
Guide Price £495,000 - £525,000

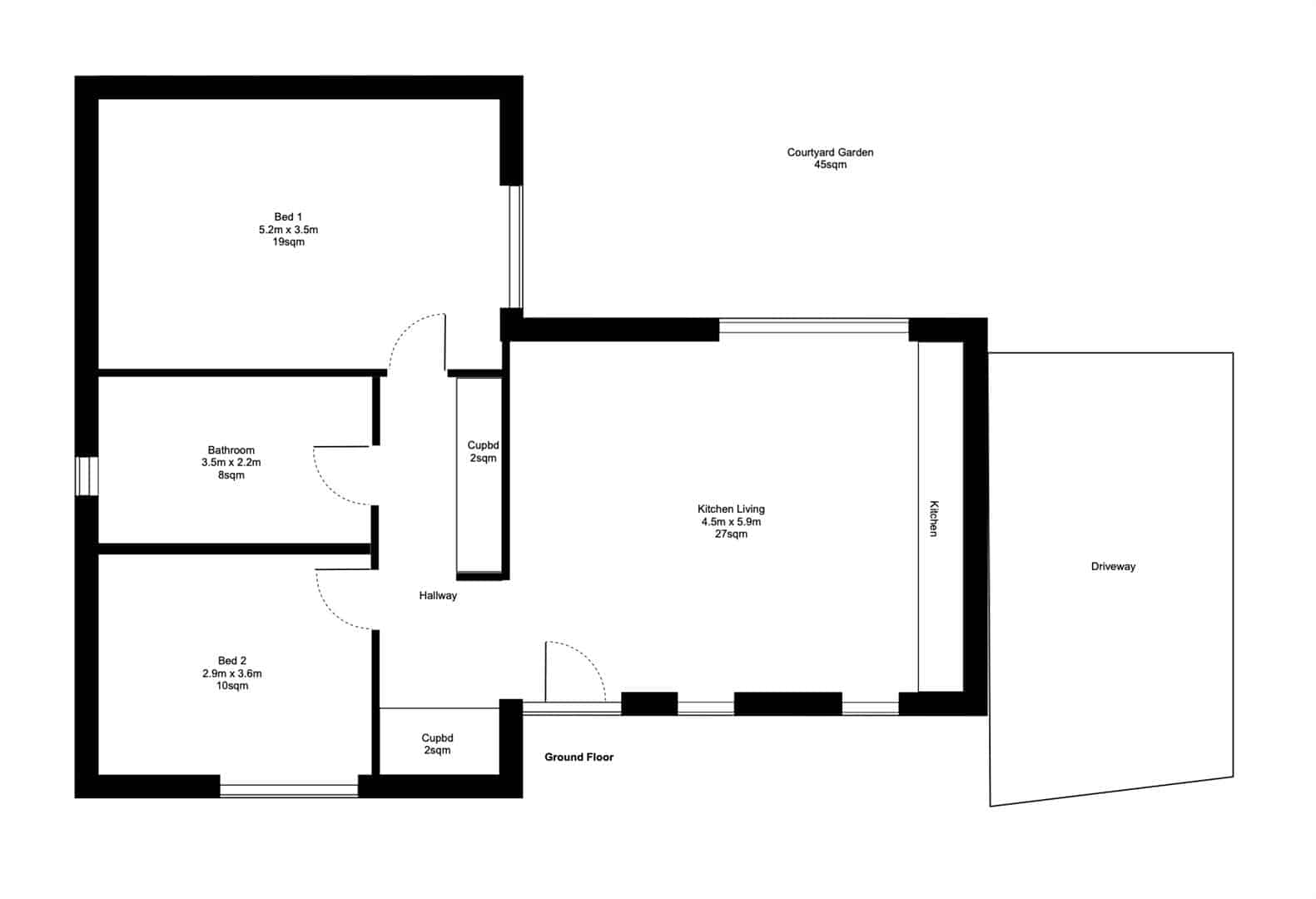
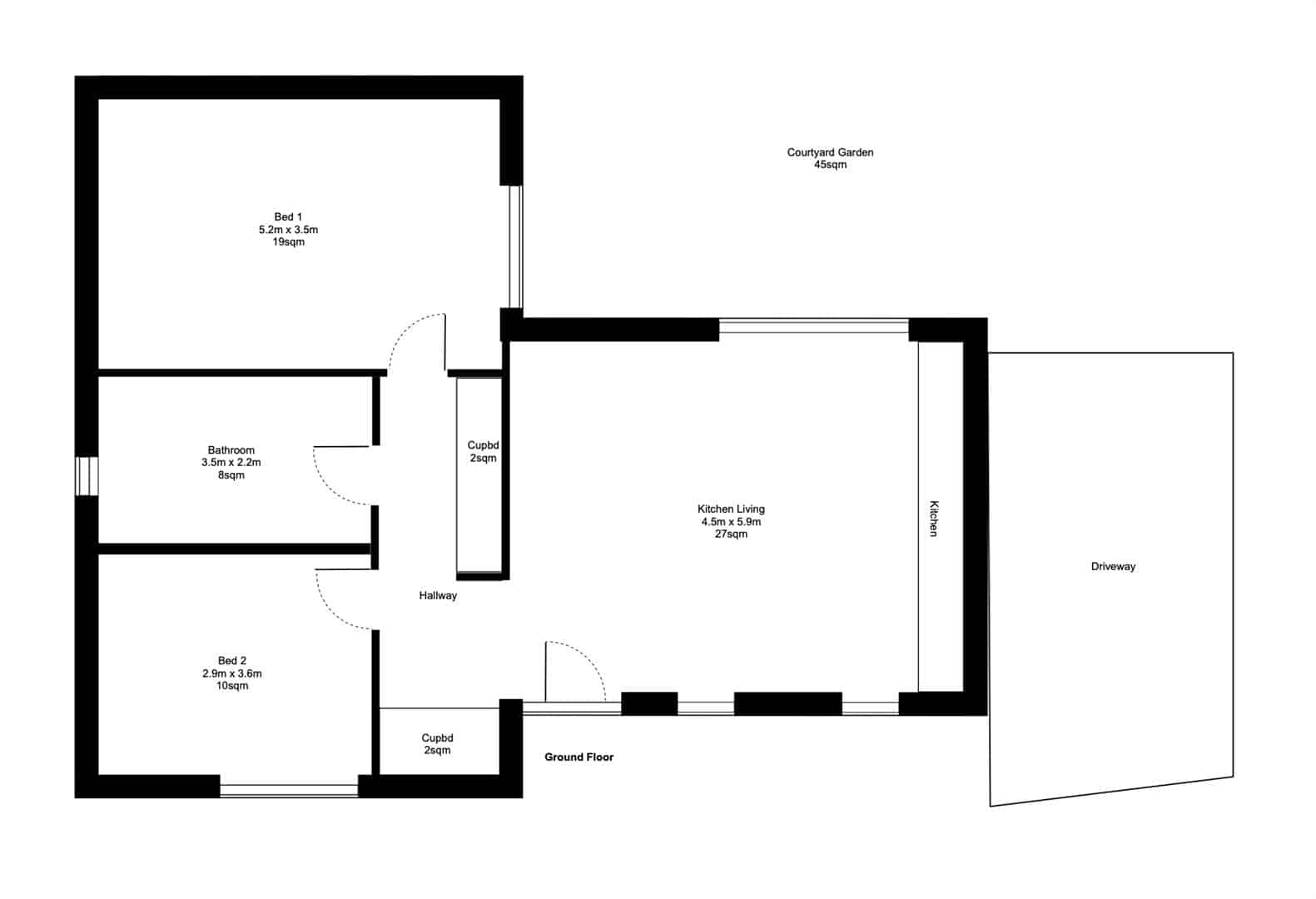
Jack Charles are delighted to offer this immaculately presented, newly built luxury bungalow in a highly sought after location in Tonbridge.

This superb two double bedroom home benefits from its own private driveway with electric car charger, PV panels for improved energy efficiency and low running costs with an Air Source Heat pump and underfloor heating and triple glazing throughout. The integrated kitchen is finished to a high specification and opens into a bright living area with bifold doors leading directly onto the garden.

There are two generous double bedrooms and a spacious family bathroom featuring a walk in shower and separate bath. Further benefits include underfloor heating throughout and excellent storage, all completed to an exceptional standard. Book a Viewing

Gallery

EPC

Floorplan

Location

Book A Viewing

Fill out the form below and we will be in touch to have a chat about this property, your requirements and how we can help.

  • This field is for validation purposes and should be left unchanged.
  • This field is hidden when viewing the form
  • This field is hidden when viewing the form