Available

Asking Price

£875,000

Birling Road, West Malling

Take a Virtual Tour Book a Viewing
4 2 2
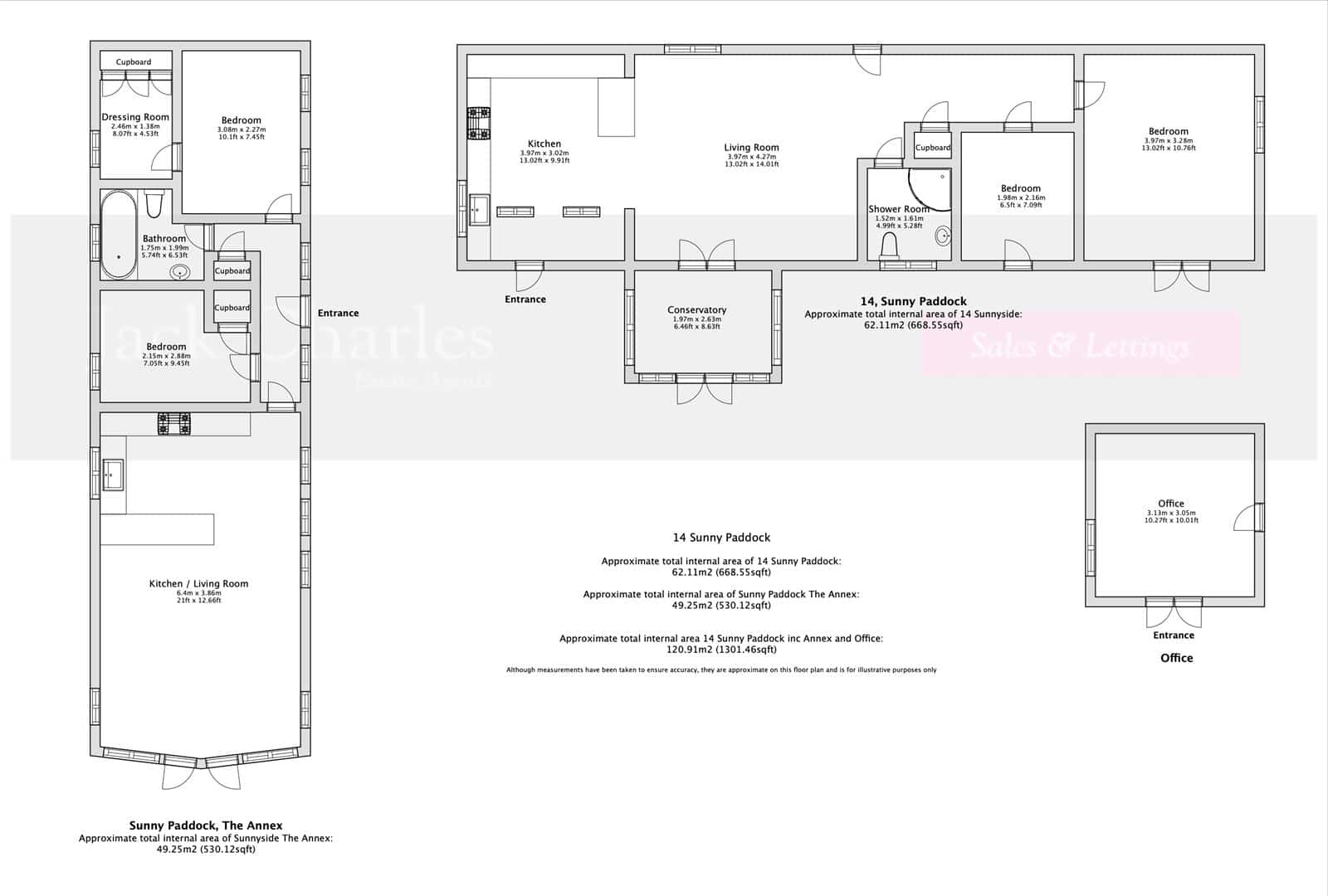
Jack Charles are delighted to offer for sale this wonderful opportunity to purchase a detached Barn and a stunning Park Lodge, ideal for multi generational living. It stands in grounds extending approx half an acre and has planning permission to extend.

You approached through wrought iron gates over a gravel driveway which provides parking for several vehicles, the driveway. The Barn is to the left as you enter and is of brick construction with wood clad weatherboarding. The entrance door leads into a stunning kitchen / breakfast room which has a range of units incorporating cupboards and drawers, a breakfast bar and there is space for table and chairs, The kitchen is open plan with the living room which has double doors to a conservatory overlooking the front garden as well as a door to the rear via the inner hallway which also leads to 2 bedrooms and a shower room.

Outside there is a wonderful private decked area enclosed by wooden balustrades and turn spindles and offers a pleasant outlook over the gardens. There is a further area to the side which is enclosed and has a gate giving access to a home office which has power and light as well as and 3 timber open barns.

The gardens are predominantly laid to lawn with variety of mature trees, it is bordered by a stream with a little bridge that crosses over to a small secluded area of garden near to the bridge. The detached park lodge stands to the right as you enter, and is to one side of the gardens and is very much in keeping with the barn and internally is stunning. There are steps to the entrance door and a hallway which gives access to 2 bedrooms and a bathroom as well as a stunning open plan family room / kitchen that has a triple aspect with windows to front side and rear, the side elevation has wonderful floor ceiling height glazed windows and doors leading out to a super decked balcony with glass panelling providing an unobscured view of the gardens Book a Viewing

Gallery

EPC

Floorplan

Location

Book A Viewing

Fill out the form below and we will be in touch to have a chat about this property, your requirements and how we can help.

  • This field is for validation purposes and should be left unchanged.
  • This field is hidden when viewing the form
  • This field is hidden when viewing the form